Schedule Schedule
Full Sky Telescope Enclosures

      The typical telescope enclosure is a slow rotating dome with a vertical notch. For the fastest telescope mounts in the world, a different design is needed. On this enclosure the entire roof splits in half and moves down to the sides allowing access to the entire sky.

      I was given the basic mechanism design and some load cases and took it from there with a detailed design, engineering and fabrication drawings.

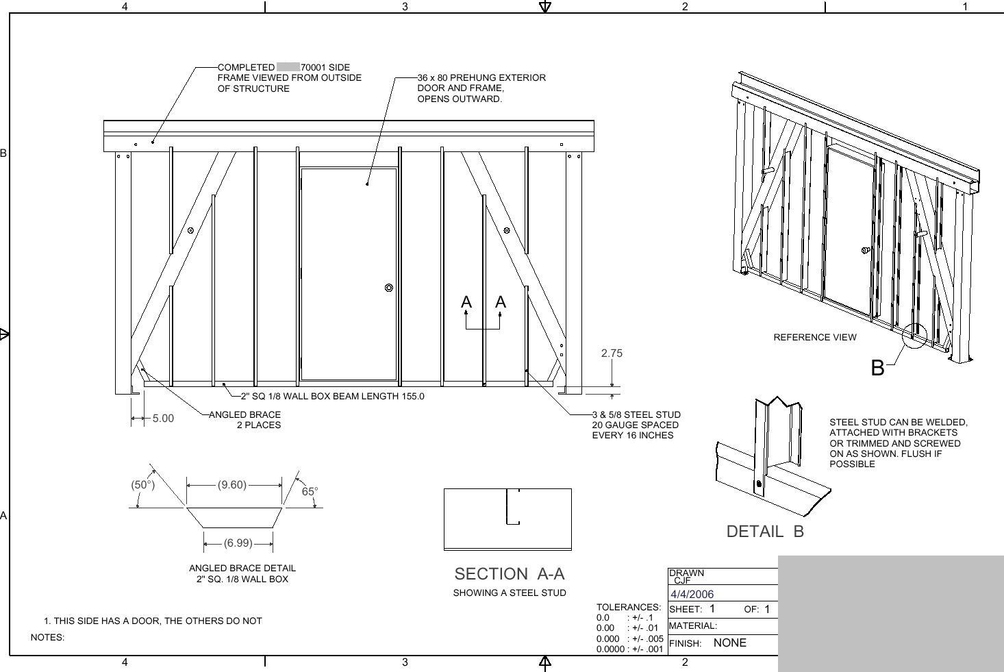
    We were fortunate to work closely with a great metal fabricator. . Rather than go into great detail, I spent time up front getting them to understand the entire project. That way I could do simple weld construction drawings like this.

    The entire project only had 16 drawings.   Here's one of an assembly.

Details:
-3 HP 240 volt 3 Phase motors powered by Commander SK drives and controlled with a PLC.
-Dual worm reduction gearboxes 600:1
-ANSI 120 size chain lowers and hoists roofs.
-Shipped assembled on flatbed trucks.












larger image
larger image
There is a very long story behind this spreadsheet

  Top Level   Resume   Work   School   Fun   Contact